元境 禅溪安悦 户型榆夏

榆夏
(榆福里B型院落)撷香花院,一面馨香,一面梦乡,此心安处是吾乡
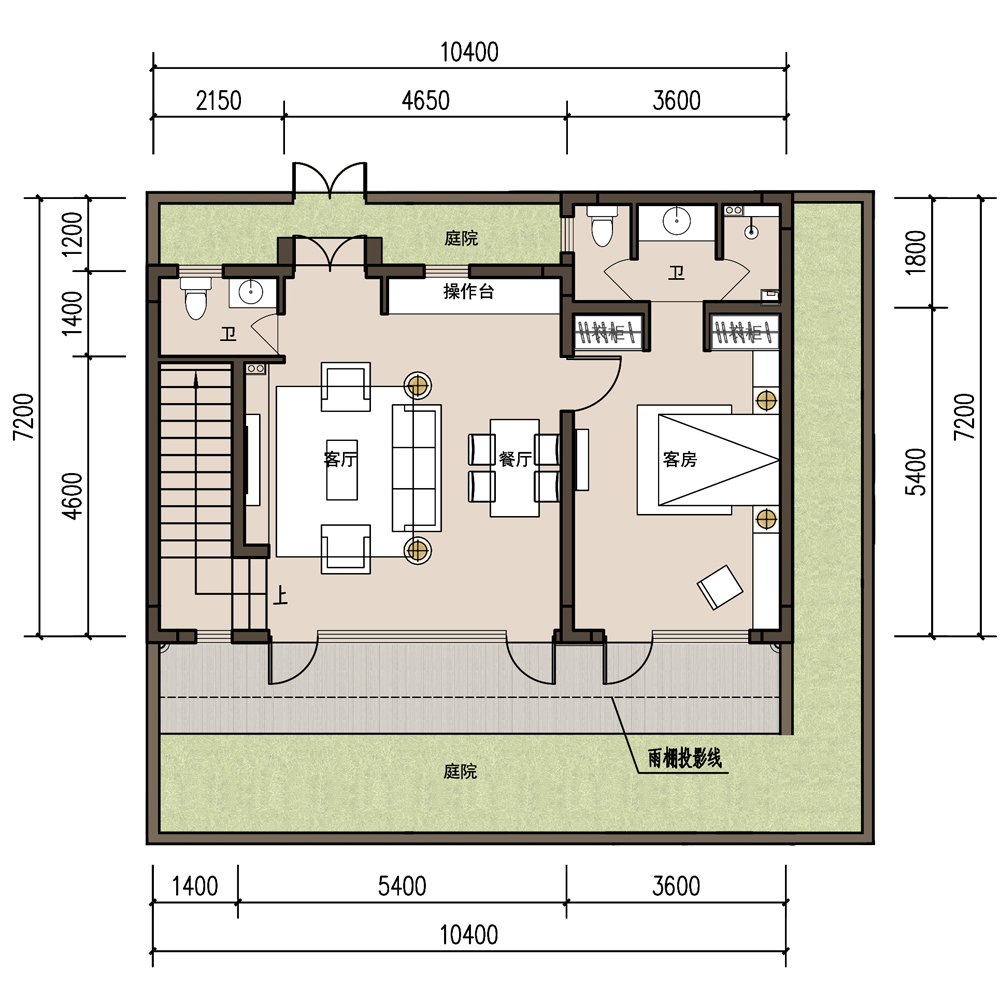
一层

向阳庭院,处处花香,清风明月入室来;

主卧套房,雅致幽静,花木相迎,回归自然真意;

观景客、餐厅紧接连廊庭院,饮茶、闲谈,独享一方豁朗。

二层

南向宽阔露台,一轮明月,已上林稍;

观景双卧室,栖于屋内,眺望苍山翠晓,依座露台,俯观草木秀织。